аудит проекта дома
Для того чтобы покупка дома не обернулась финансовыми потерями лучше воспользоваться услугами специалиста по технадзору, который укажет вам на все недостатки объекта и вы сможете принять взвешенное решение о покупке.
Чтобы максимально выгодно продать дом надо знать его достоинства и недостатки. Специалист по техническому надзору проведёт обследование дома и даст рекомендации о том, что нужно предпринять перед продажей.
Технический надзор и контроль во время строительства позволит вам сэкономить время, деньги и нервы, избавит вас от необходимости самостоятельно постоянно выезжать на объект и при этом гарантирует полный контроль над действиями подрядчика.
Для того чтобы построить дом необходим проект. И это — не несколько картинок с изображением дома, а значительный по объёму документ. Проект может быть типовым или индивидуальным. И ошибки могут содержаться в любом варианте. И если начать строительство, а проект содержал ошибки, то с большой вероятностью они будут перенесены на постройку. А это приведёт, в лучшем случае, к финансовым потерям, а в худшем — дом не будет безопасным.
Как и в других сферах в строительстве много разных специалистов. Над проектом работает целая группа профессионалов.
Строители читают чертежи, строят по ним дом, но перед ними не стоит задача выявлять ошибки. Предполагается, что в чертежах нет ошибок.
Непрофессионалу довольно сложно понять, что проект дома содержит ошибки. Только специалист по технадзору может визуально определить проблему исправить недочёты.
Наведите курсор на фото, чтобы узнать, какую ошибки в проекте нашёл наш специалист. (СП).
Перед монтажом подсистемы необходимо подготовить проект с расположением направляющих и кронштейнов. Шаг кронштейнов определяется на основании натурных испытаний фактически используемых анкеров на вырыв в разных материалах (бетон, газобетон, керамоблок). После испытаний рассчитывается несущая способность 1 анкера из чего принимается шаг кронштейна.
Перед монтажом подсистемы необходимо подготовить проект с расположением направляющих и кронштейнов. Шаг кронштейнов определяется на основании натурных испытаний фактически используемых анкеров на вырыв в разных материалах (бетон, газобетон, керамоблок). После испытаний рассчитывается несущая способность 1 анкера из чего принимается шаг кронштейна.
Перед монтажом подсистемы необходимо подготовить проект с расположением направляющих и кронштейнов. Шаг кронштейнов определяется на основании натурных испытаний фактически используемых анкеров на вырыв в разных материалах (бетон, газобетон, керамоблок). После испытаний рассчитывается несущая способность 1 анкера из чего принимается шаг кронштейна.
Перед монтажом подсистемы необходимо подготовить проект с расположением направляющих и кронштейнов. Шаг кронштейнов определяется на основании натурных испытаний фактически используемых анкеров на вырыв в разных материалах (бетон, газобетон, керамоблок). После испытаний рассчитывается несущая способность 1 анкера из чего принимается шаг кронштейна.
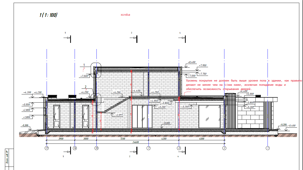
Уровень покрытия не должен превышать уровень пола в здании. Как правило, делают не менее чем на 50 мм ниже, исключая попадание воды и обеспечить возможность открывания дверей.
Уровень покрытия не должен превышать уровень пола в здании. Как правило, делают не менее чем на 50 мм ниже, исключая попадание воды и обеспечить возможность открывания дверей.
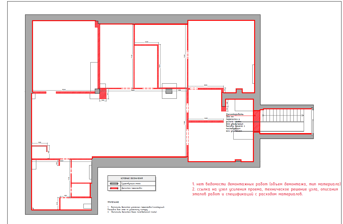
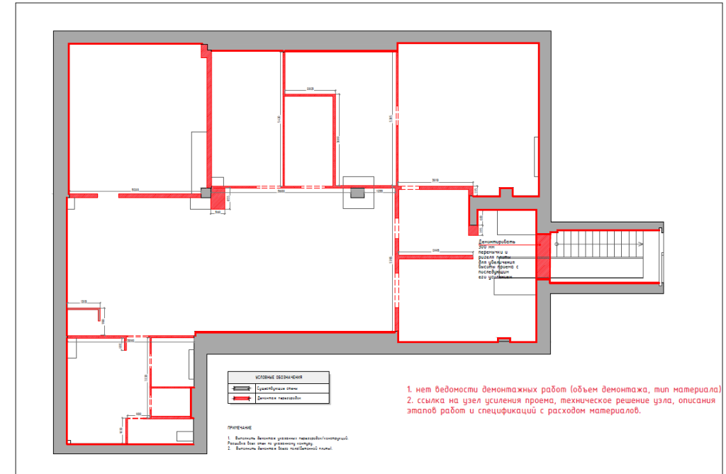
1. Нет ведомости демонтажных работ (объём демонтажа, тип материала). 2. Ссылка на узел усиления проёма, техническое решение узла, описание этапов работ и спецификаций с расходами материалов.
1. Нет ведомости демонтажных работ (объём демонтажа, тип материала). 2. Ссылка на узел усиления проёма, техническое решение узла, описание этапов работ и спецификаций с расходами материалов.
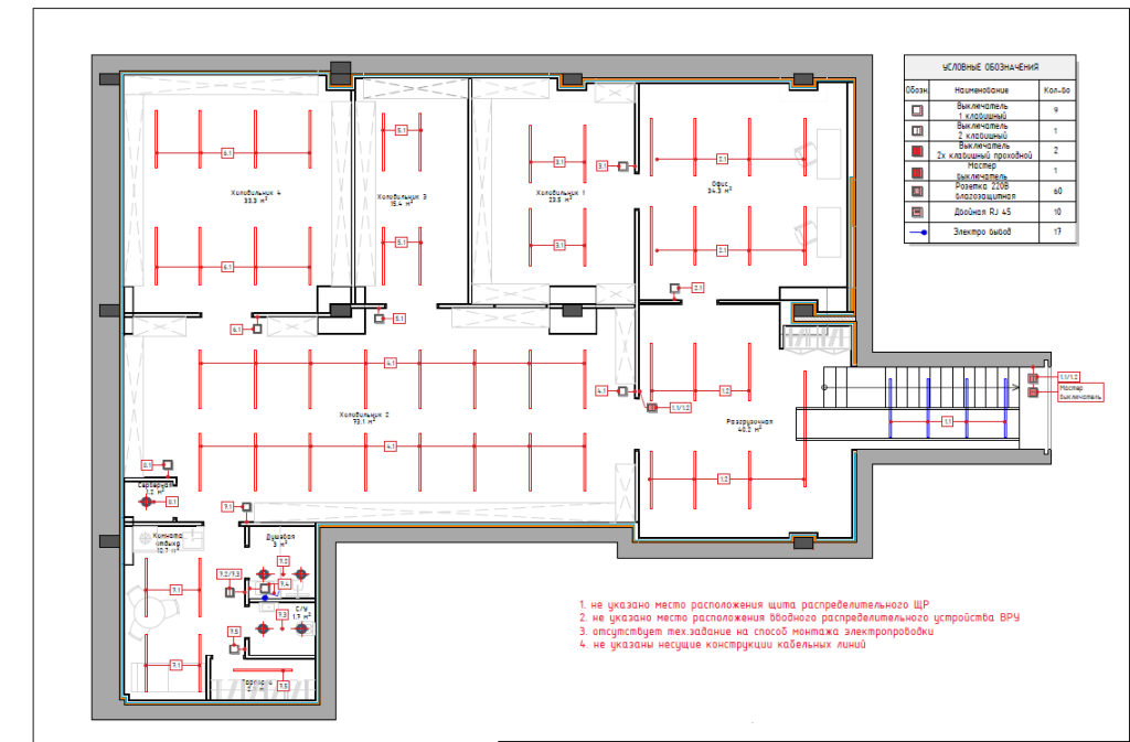
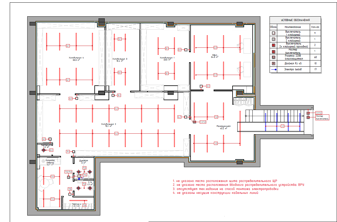
1. Не указано место расположения щита распределительного ЩР. 2. Не указано место расположения вводного распределительного устройства ВРУ. 3. Отсутствует тех.задание на способ монтажа электропроводки. 4. Не указаны несущие конструкции кабельных линий.
1. Не указано место расположения щита распределительного ЩР. 2. Не указано место расположения вводного распределительного устройства ВРУ. 3. Отсутствует тех.задание на способ монтажа электропроводки. 4. Не указаны несущие конструкции кабельных линий.
1. Нет спецификации материалов и деталей, или ссылки на неё. 2. Поверхность плиты большая, нужны деформационные швы, в том числе в местах примыкания к стакану колонны. 3. Нет поддерживающего каркаса / детали для верхнего ряда арматуры.
1. Нет спецификации материалов и деталей, или ссылки на неё. 2. Поверхность плиты большая, нужны деформационные швы, в том числе в местах примыкания к стакану колонны. 3. Нет поддерживающего каркаса / детали для верхнего ряда арматуры.